【3/8 更新】業者間流通物件を探していた中で「東京アトリエさがし」がアトリエ・工房として検討していただけそうな物件をご提案します。
ピックアップ物件以外でも東京都内、関東一円でお探ししますので、お気軽にご相談ください。
1.物件名:東向島貸事務所・店舗
30㎡程の事務所店舗です。
ガラス窓でスペースへの視認性が高いので、ギャラリーや店舗としての利用が見込めそうです。
| 所在地 | 東京都墨田区墨田1 |
| 最寄り | 東武伊勢崎線 東向島駅 徒歩8分 |
| 賃料・管理費 | 110,000円(税込)・なし |
| 敷金・礼金 | 1か月・1か月 |
| 契約期間 | 2年間(更新:新賃料1か月) |
| 構造等 | 鉄骨造3階建/1階 S57年6月築 31.35㎡ |
| 設備等 | トイレ、エアコン、キッチン |
| 条件 | *保証会社・火災保険加入要 *飲食店不可 *業種応相談 *短期解約違約金あり *更新時新賃料の1/4の事務手数料が発生します。 *成約時に仲介手数料1か月分+税が発生します。 |
| 利用用途 | 絵画、彫刻、レザークラフト、裁縫ほか アトリエ・工房・ギャラリー・店舗など |
![]() | ![]() |
2.物件名:江東区砂町銀座貸店舗・事務所
砂町銀座商店街沿いの店舗・事務所です。
水場と制作スペースが分かれていて、ギャラリー・店舗・ワークショップなどを開催したい方にはおすすめ。
商店街沿いですので、人通りも多いです。
| 所在地 | 東京都江東区北砂4 |
| 最寄り | 都営新宿線 大島駅 徒歩19分 |
| 賃料・管理費 | 80,000円・なし |
| 敷金・礼金 | 3か月・1か月 |
| 契約期間 | 2年間(更新:新賃料1か月) |
| 構造等 | RC造5階建/1階 H3年6月築 約32㎡ |
| 設備等 | トイレ、キッチン、シンク |
| 条件 | *保証会社・火災保険加入要 *飲食店不可 *店舗・教室等利用可 *成約時に仲介手数料1か月分+税が発生します。 |
| 利用用途 | 絵画、造形、模型製作・レザークラフトほか アトリエ・工房・ギャラリー・店舗など |
![]() | ![]() |
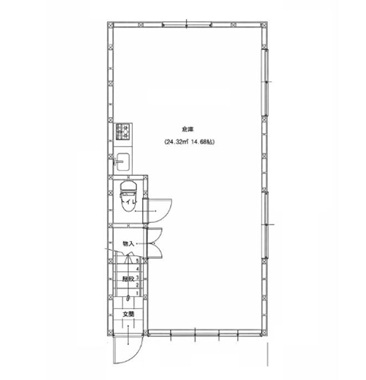
3.物件名:南小岩住居兼貸事務所・店舗
シャッター付のスライドドアから10帖弱の店舗スペース。
億は約19帖の1R事務所兼・住居。
非常に希少な物件でアトリエ・工房・店舗・倉庫など多岐にわたる利用が可能。
居住は可能ですが、事業用契約になります。
| 所在地 | 東京都江戸川区南小岩2 |
| 最寄り | JR総武線 小岩駅 徒歩21分 |
| 賃料・管理費 | 120,000円(税込)・なし |
| 敷金・礼金 | 2か月・1か月 |
| 契約期間 | 2年間(更新:新賃料1か月) |
| 構造等 | RC造5階建/1階 S55年2月築 63.30㎡ |
| 設備等 | バス・トイレ別、洗面台、キッチン、シャッター |
| 条件 | *保証会社・火災保険加入要 *現状引渡し、原状回復義務あり *事業用での賃貸借契約(居住は可能) *更新料1か月+更新事務手数料0.5毛月 *退去予告3か月前 *短期解約違約金あり *成約時に仲介手数料1か月分+税が発生します。 |
| 利用用途 | 絵画、陶芸、彫刻、版画、各種工芸ほか アトリエ・工房・店舗など |
![]() | ![]() | ![]() |
![]() | ![]() | ![]() |
4.物件名:曙橋・事務所1F
トイレ・キッチン・エアコン付き。約23㎡のコンパクトな1階路面事務所です。
スライドドアで出入りもしやすく、絵画、版画、造形、設計・デザイン事務所などに良い物件。
物販店舗としての利用も応相談です。
| 所在地 | 東京都新宿区余丁町 |
| 最寄り | 都営大江戸線 若松河田駅 徒歩6分 都営新宿線 曙橋駅 徒歩10分 |
| 賃料・管理費 | 88,000円(税込)・なし |
| 敷金・礼金 | 2か月・1か月 |
| 契約期間 | 2年間(更新:新賃料1か月) |
| 構造等 | 鉄骨造3階建/1階 1969年10月築 23㎡ |
| 設備等 | トイレ、エアコン、キッチン、シャッター |
| 条件 | *保証会社・火災保険加入要 *物販店舗相談 *成約時に仲介手数料1か月分+税が発生します。 |
| 利用用途 | 絵画、版画、造形、レザークラフトほか アトリエ・工房・事務所など |




5.物件名:国分寺事務所・店舗3F
20帖・約40㎡の広々事務スペース。
国分寺駅から徒歩10分の徒歩圏内なので、絵画教室やワークショップなどもご検討いただけます。
フリーレント1か月付きます。
| 所在地 | 東京都国分寺市南町2 |
| 最寄り | JR中央線 国分寺駅 徒歩10分 |
| 賃料・共益費 | 78,100円(税込)・10,000円 |
| 敷金・礼金 | 3か月・なし |
| 契約期間 | 2年間(更新:新賃料1か月) |
| 構造等 | RC造3階建/3階 1977年9月築 39.66㎡ |
| 設備等 | キッチン、トイレ |
| 条件 | *保証会社・火災保険加入要 *短期解約違約金あり *店舗可(業種相談可) *管理会社指定の電力会社あり *退去予告3か月前まで *入居可能日2月下旬以降 *成約時に仲介手数料1か月分+税が発生します。 |
| 利用用途 | 絵画、彫刻、造形、レザークラフト、裁縫ほか アトリエ・工房・事務所・店舗・教室・ギャラリーなど |

◆情報更新日:3月8日
(情報有効期限:2026年3月15日)
※ピックアップ物件は弊社管理物件ではありませんので、既にお申込みが入っている場合もございます。予めご了承ください。
ピックアップの物件以外でも東京都や関東一円でアトリエ探しをされていらっしゃる方、お気軽にご相談ください。
業者間流通物件などからご利用用途、条件に見合う物件をお探しいたします。
内見現地、契約手続きなどもこちらからお伺いするなど、原則来店不要です。









